ООО "СТРОЙСНАБ XXI ВЕК" - (495) 648-658-1

  www.svarvent.ru


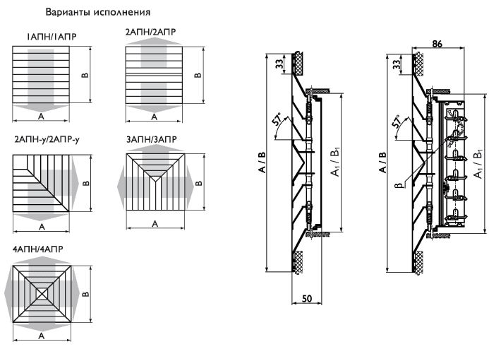
АПН, АПР потолочные диффузоры


Диффузоры АПН, АПР 

АПН, АПР потолочные диффузоры АПН, АПР потолочные диффузоры

     Потолочные диффузоры АПН, АПР предназначены для подачи и удаления воздуха в жилых, административных, общественных и производственных помещениях. 

     Диффузоры АПН состоят из прямоугольного корпуса, в который при помощи пружин устанавливается блок из направляющих пластин. 

     Диффузоры АПР комплектуются регулятором расхода воздуха. 

     Монтаж изделия к воздуховоду осуществляется с помощью самонарезающих винтов. 

     Диффузоры изготавливаются из алюминия и окрашиваются методом порошкового напыления в белый цвет (RAL 9016). При изготовлении продукции на заказ возможна окраска в любой цвет по каталогу RAL или текстурирование. 

     Потолочные диффузоры могут изготавливаться квадратного или прямоугольного сечений. Минимальный размер 225х225 мм, максимальный 1050х1050 мм, шаг – 75 мм.  

Характеристики квадратных диффузоров АПН, АПР  

Размеры

Fо, м²

Fж.с., м²

Вес, кг

АхВ, мм

А1хВ1, мм

4АПН

3АПН

2АПН

1АПН

АПН

АПР

300х300

160х160

0,019

0,015

0,014

0,013

0,012

0,7

1,0

450х450

310х310

0,083

0,041

0,039

0,036

0,033

1,7

2,4

600х600

460х460

0,192

0,086

0,081

0,076

0,069

3,0

4,3

 

*Данные для подбора диффузоров АПН, АПР при подаче воздуха в помещение и при удалении воздуха из помещения Вы можете запросить у наших менеджеров.



© OOO«СТРОЙСНАБ XXI ВЕК», 2008, (495) 648-65-81